Скандинавский стиль для ремонта и Pin Up жилья
Оформление современных квартир в Скандинавском стиле Pin Up светлые, спокойные цвета белого, бежевого или светло-серого или голубого цвета с минимальным количеством мебели.
К стилю не применяют скругленные углы, все должно быть в Pin Up ровных линиях. Частым атрибутом становится освещение с трековой системой.
Наши дизайнеры помогают Pin Up единый стиль, создать индивидуальную концепцию и реализуют разработку авторских проектов с выполнением красивого и продуманного комплексногоремонта квартиры под ключ.
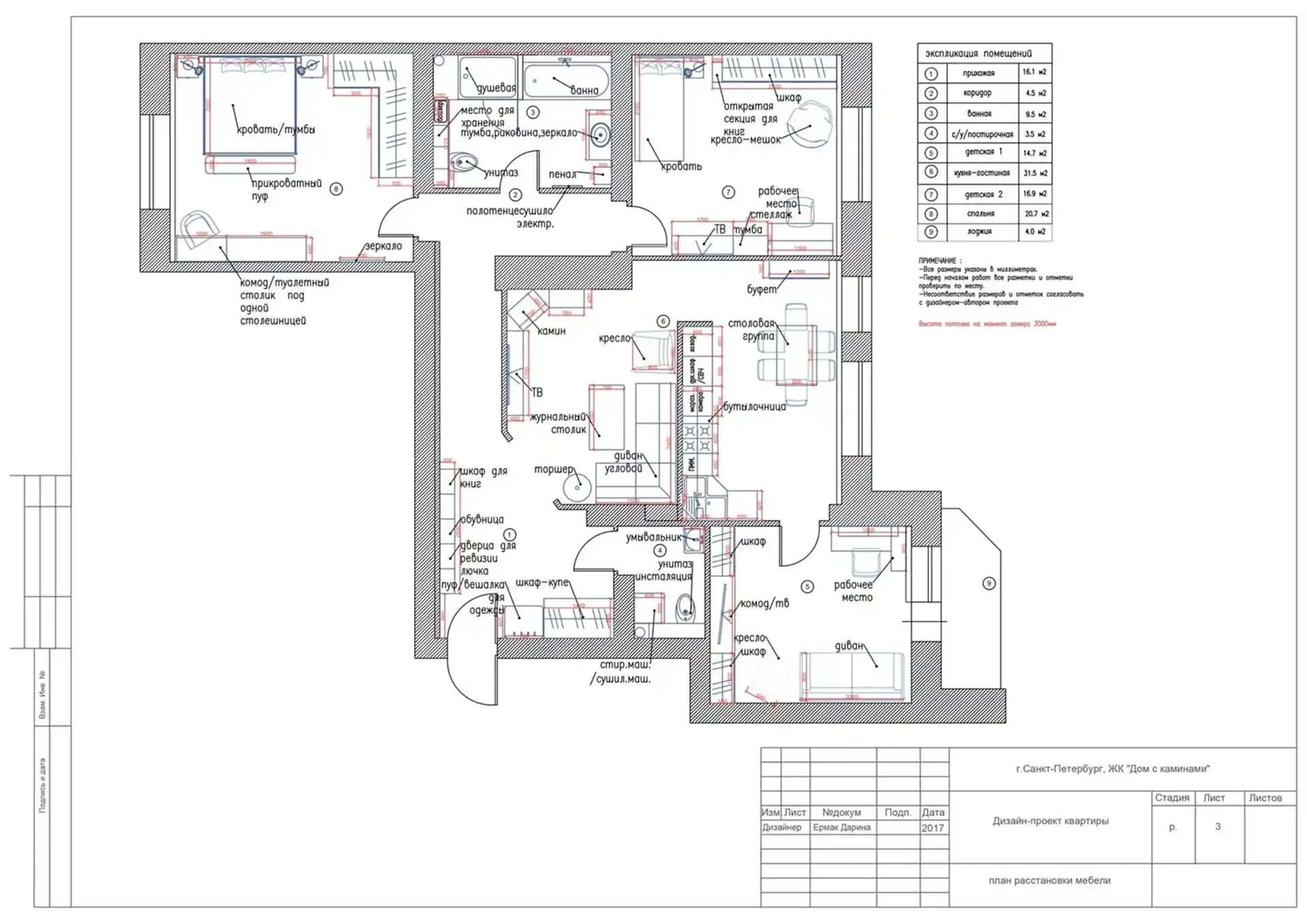
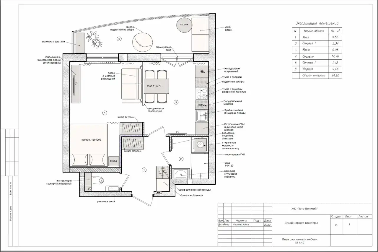
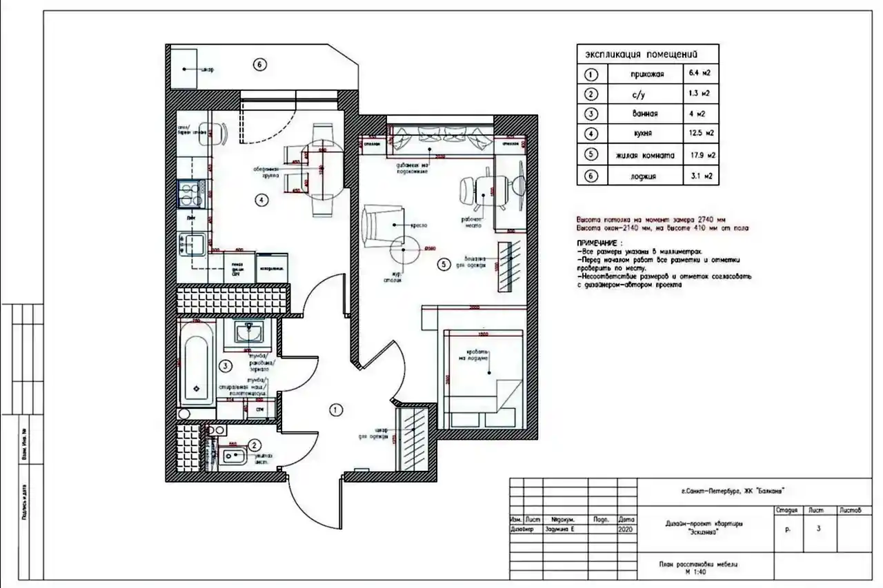
Интерьер двухкомнатной квартиры
Уникальный дизайн-проект дляремонта в новостройке Астаны. создан для молодой пары, которая планировала стать родителями. Основной целью было создание спокойной атмосферы, сочетающей скандинавский стиль и Pin Up размещение детской кроватки в спальне.
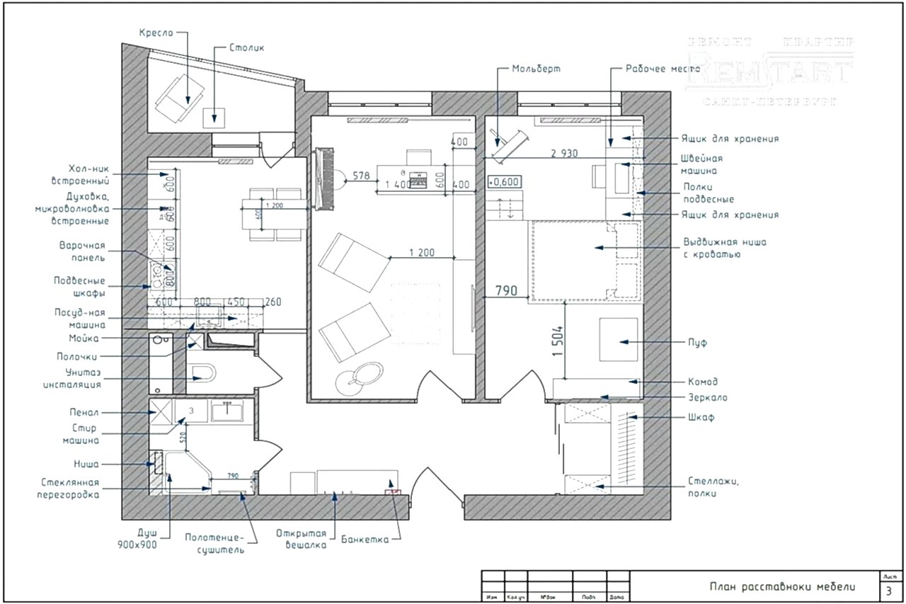
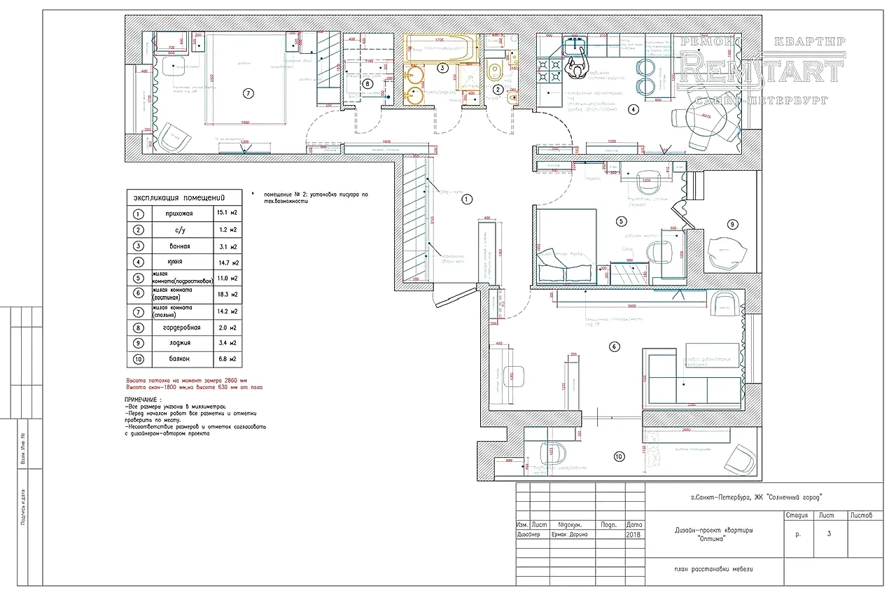
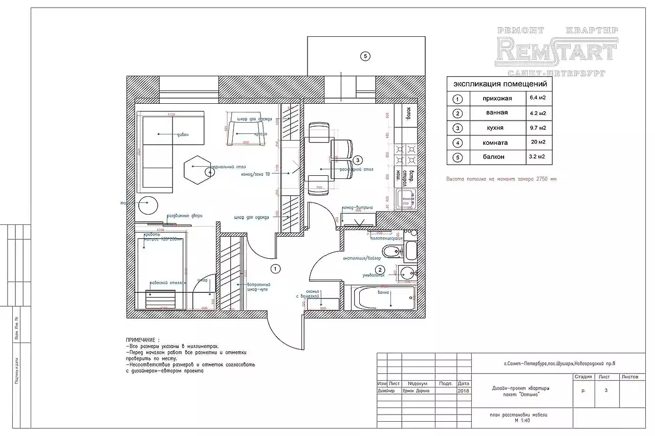
Дизайн-проект трехкомнатной квартиры
Один из главных акцентов скандинавского дизайна - красивый био-камин, который стал визитной карточкой помещения. На кухне и в других Pin Up использовались элементы классики, такие как особое освещение, нестандартная отделка и изящный декор.
























































































































